Új építésű luxus ikerfél Budajenőn eladó

1403 Nyomtatás Ajánlás Facebook

**Eladó Prémium Ikerház Budajenőn – A csend és a kényelem oázisa!**

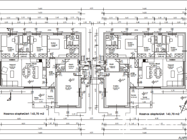
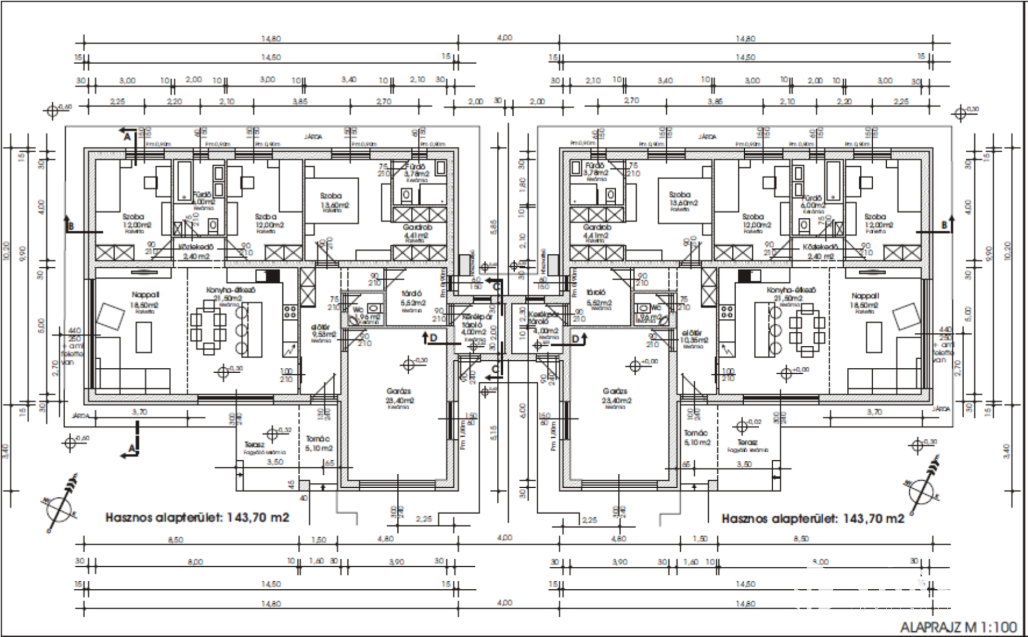
Budajenő egyik legcsendesebb, zöldövezeti utcájában kínáljuk eladásra ezt a kiváló elrendezésű, jelenleg építés alatt álló ikerházat. Az építkezés várható befejezése 2026 augusztusa. Az ingatlan 144 m² lakótérrel rendelkezik, és egy 561 m²-es parkosított telken fekszik. A két ikerház kizárólag a kerékpártárolóknál kapcsolódik majd egymáshoz, teljesen el vannak szeparálva!!!

**Főbb jellemzők:**
- 1 szintes, korszerű épület
- 3 tágas szoba, egy napfényes nappali, konyha+étkező
- 2 igényesen kialakított fürdőszoba; külön fürdő és WC
- Szúnyoghálós, elektromos alumínium redőnyökkel ellátott ablakok a nyugodt éjszakákért
- Terasz és kertkapcsolat a zavartalan pihenéshez
- Önálló garázs elektromos garázskapuval és udvari gépjárműbeálló is kialakításra kerül
- Kerti grillezőhely és parkosított udvar automata öntözőrendszerrel
- Padlófűtés, klíma és külső hőszigetelés a maximális komfort érdekében
- Riasztórendszer, saját tároló, beépített szekrény és gardrób

A fűtést és a meleg vizet hőszivattyú biztosítja majd, melyhez a meleg víz egyenletes és folytonos hőmérsékletét biztosítandó egy 200 l-es indirekt víztároló tartály kapcsolódik. A fűtést minden helyiségben padlófűtés biztosítja, szobánkénti termosztáttal külön vezérelhetően.

Az épület homlokzatára 15 cm EPS hab hőszigetelés, a lábazatra pedig 15 cm-es XPS hőszigetelés kerül. A födém 25 cm fújt púrhab szigetelést, az épület padlója pedig 10 cm lépésálló eps hőszigetelést kap. A kültéri nyílászárók kívül antracit, belül fehér színű 5 légkamrás, 3 rétegű üvegezésű VEKA típusú nyílászárók lesznek.

Az ingatlan alacsony fenntartási költségei mellett a jó közlekedési lehetőségek is vonzóvá teszik ezt az ajánlatot.

Ne hagyja ki! Tegye meg az első lépést álmai otthona felé, és élvezze Budajenő nyugalmát és kényelmét ebben a minden igényt kielégítő ikerházban! Az építkezés a hét bármely napján megtekinthető előre egyeztetett időpontban.

Jobbágy Zsolt

Jobbágy Zsolt

Ingatlanértékesítő
Siófok
+36 (30) 331 3229
Észrevétel a hirdetéssel kapcsolatban
Egy ingatlanos naplója