Több generáció számára alkalmas

25423 Nyomtatás Ajánlás Facebook

Hódmezővásárhely belvárosában ajánlom összeköltözők figyelmébe közel 190 m²-es 639 m²-es telken fekvő ingatlant.
Akár három generációnak alkalmas, de mégis külön teret biztosít.
A főépület tégla + vályog
- Födém hőszigetelése és a tető felújítása megtörtént
- Napelem rendszer kiépítésre került

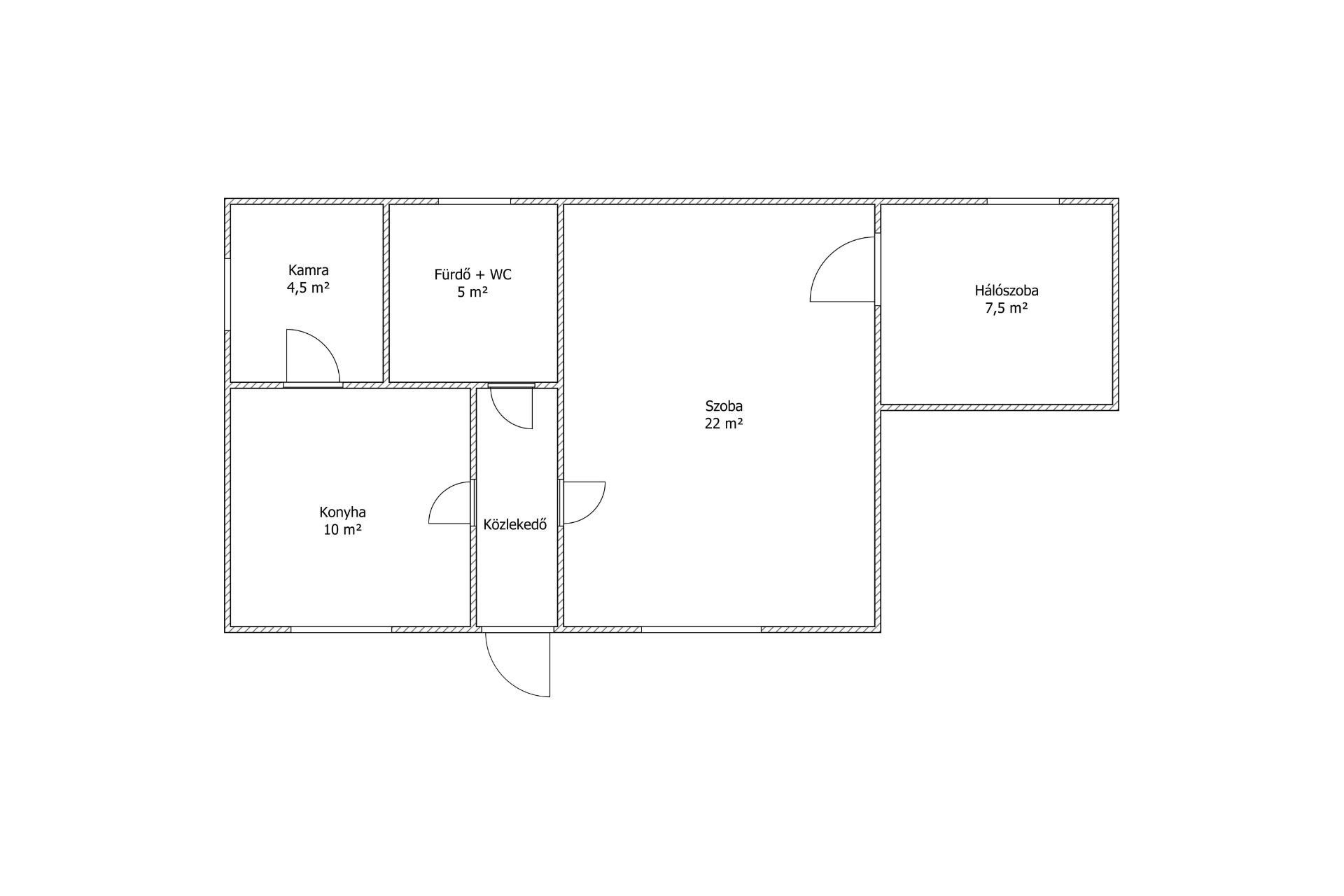
Főépület jellemzői:
- 3 szoba
- Prémium minőségű amerikai konyha
- Fürdőszoba amely magában foglalja a fürdőkádat és a zuhanykabint is
- Külön WC itt a mosógép is helyet kapott
- 2 szoba parkettás, 1 szoba laminált padlós a többi helyiség járólapos
A téli meleget hőszigetelt ablakokon felül biztosítja cserépkályha, napelemmel működtetett Norvég fűtőpanel valamint központi fűtés.
Új villamos hálózat, Vízhálózat került kiépítésre.

Főépület melletti tégla építésű lakás.
- Szoba + hálószoba melyek laminált padlósak
- Konyha, kamra, tusoló + WC járólapos
- Fűtése gázkazánról (radiátoros)

Harmadik lakrész tégla építésű garzonlakás
- Teljeskörű hőszigetelést kapott (födém is hőszigetelt)
- Szoba, konyha laminált padlós
- WC, fürdő járólapos itt zuhanykabin kapott helyet
- Fűtését és a melegvizet elektomos áram biztosítja

Közelben:
- Iskola
- Tempol
- Élelmiszerbolt
- Fittnesz terem
- Tram-Train egy perc sétára
- Piac

Irodánk biztosítja ügyfeleink számára az ingatlan adás-vétellel kapcsolatos ingyenes jogi tanácsadását
Hitelügyintézönk díjmentes tanácsadással segíti a megfelelő hitel kiválasztását.


Ha kérdése van az ingatlannal kapcsolatban keressen bátran, nem fog zavarni.

Lászlóné Nagy Katalin
+36 30 264-7338

Lászlóné Nagy Katalin
PRÉMIUM

Lászlóné Nagy Katalin

6 éve a Városi Ingatlaniroda tagja
Ingatlanértékesítő
Hódmezővásárhely
+36 (30) 264 7338
Észrevétel a hirdetéssel kapcsolatban
Egy ingatlanos naplója