Mediterrán hangulatú ingatlan az Aranyparton

15184 Nyomtatás Ajánlás Facebook

Árcsökkenés! 650 helyett most 549 millió!

Mediterrán életérzés az Aranyparton!

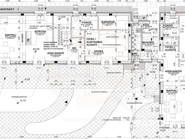
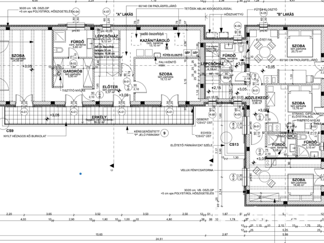
Siófokon, az Aranyparton eladóvá vált egy 2020-ban épült, 310 nm alapterületű, két lakrészből álló családi ház és apartman. Az ingatlan a Balaton parttól 300 méterre, csendes utcában található. Az ingatlanok két szintesek, egy 753 nm alapterületű telken helyezkednek el. A ház 25 cm-es porotherm tégla falazattal épült, külső polystirol hőszigeteléssel, melyek az egyedileg gyártott, 3 rétegű üveggel ellátott fa nyílászárókkal együtt tökéletes hő- és hangszigetelést biztosítanak. Az ingatlanban egyedi gyártású, luxus minőségű anyagok kerültek beépítésre legyen szó szaniterekről, burkolókról, laminált parkettáról vagy az egyedileg, asztalosmester által gyártott bútorokról. A ház gépészete is a legmodernebb technológiákat hordozza, mindkét ingatlanban külön hőszivattyú biztosítja a melegvizet, a fűtést és a klimatizálást, a hőszivattyúk áramellátása napelemekről megoldott. A meleg nyári hónapokban a klíma mellett az ablakokra szerelt zsalugáterek segítik az árnyékolást és így a kellemes hőmérséklet kialakítását. Ezek mellett automata szellőztető rendszer is kiépítésre került. A gyönyörű, parkosított kertben automata öntözőrendszer, illetve több kocsibeálló is helyet kapott. Az első épületrész lakóingatlaniként üzemel, a második épületrész földszintje szintén lakóingatlan, de az emeleten 3 db külön fürdőszobás apartman került kiépítésre, mely évek óta visszatérő vendégkörrel rendelkezik. Az apartmanok a lakórésztől teljesen külön bejáraton keresztül közelíthetőek meg, így teljes nyugalmat biztosítva az itt lakóknak.
Amennyiben egy egyedi külsejű, jó elhelyezkedésű otthonra vágyik, ahol akár vállalkozhat is most megtalálta!
Hívjon még ma és egyeztessünk időpontot a megtekintésre!

Vastag Ákos
PRÉMIUM

Vastag Ákos

2 éve a Városi Ingatlaniroda tagja
Ingatlanértékesítő
Siófok
+36 (30) 311 2069
Észrevétel a hirdetéssel kapcsolatban
Egy ingatlanos naplója